Description de l'offre
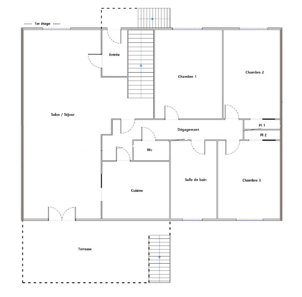
*** SOUS COMPROMIS - VISITES SUSPENDUES ***Nouvelle exclusivité ! Située dans la commune de PONTOY, à 5 minutes de Mécleuves, 7 minutes de Solgne, 8 minutes de Verny et 10 minutes de Metz Technopôle. Il s’agit d’une maison individuelle avec sous-sol complet édifiée sur une agréable parcelle de 6.47 ares. Vous apprécierez son environnement calme et champêtre, en étant néanmoins à proximité de toutes les commodités. Elle est composée d’un salon / séjour traversant, ouverts sur une terrasse, et bénéficiant d’une superbe vue dégagée. Elle dispose de 4 chambres confortables. La maison est habitable en l’état mais nécessiterait toutefois des travaux de confort afin d’en profiter pleinement. En annexes et pour compléter ce bien viennent s’ajouter un grand garage et un atelier. Le « Géorisques » est téléchargeable gratuitement sur le site du gouvernement : georisques.gouv.fr. L'État des Risques et Pollution « ERP » est disponible sur demande et vous sera présenté lors de la visite. Honoraires à la charge du vendeur /// KARDINAL IMMOBILIER à Rémilly - Découvrez toutes nos offres sur notre site internet kardinal-immobilier.
