Description de l'offre
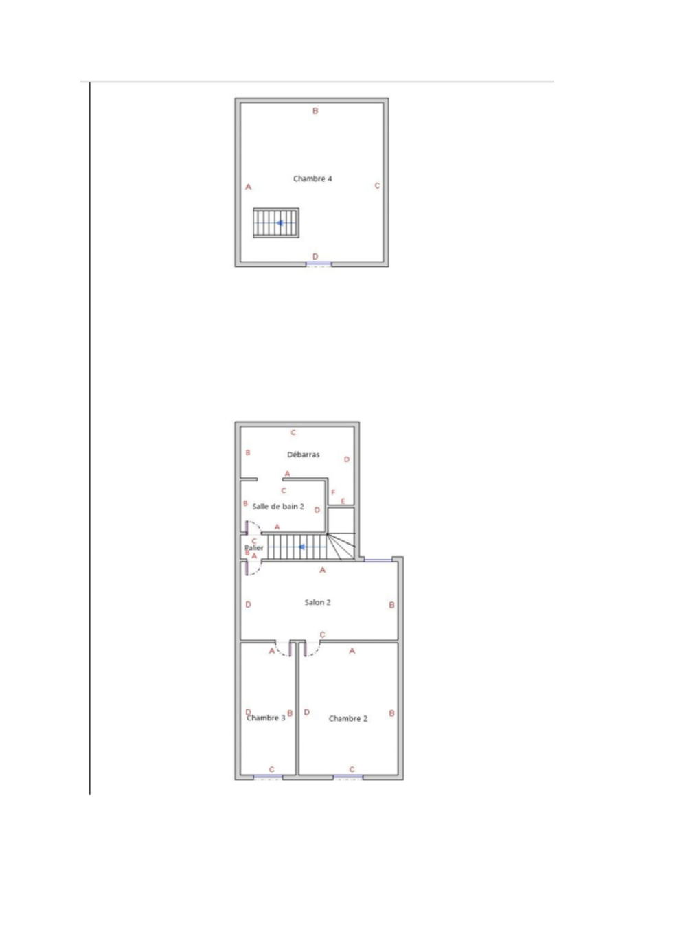
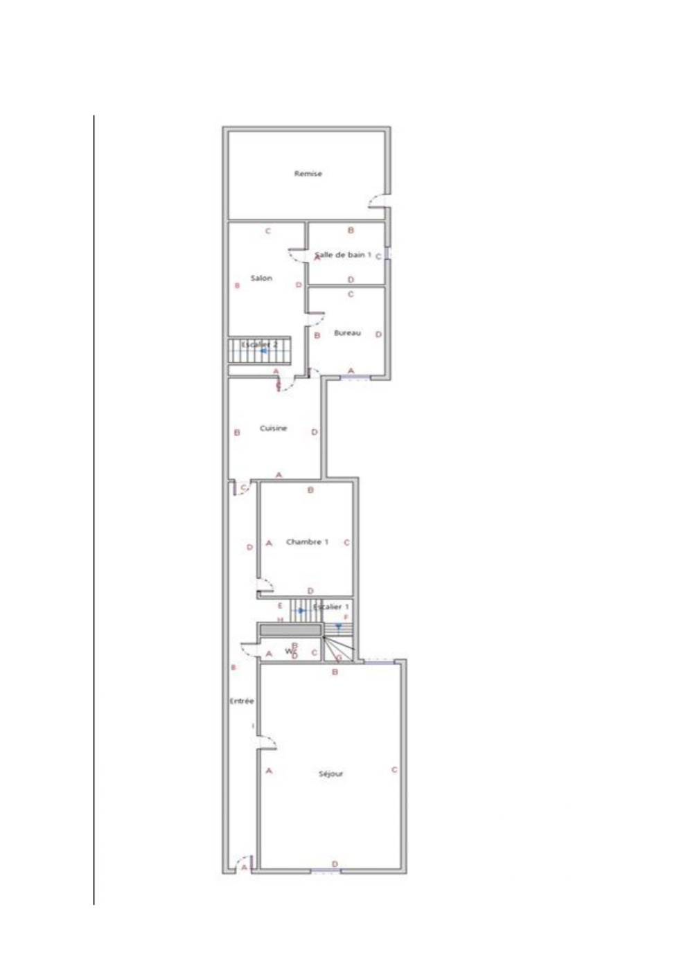
A découvrir sur la commune de LONGEVILLE-LES-ST-AVOLD, cette maison de village entièrement rénovée de type F8 édifié sur un terrain entièrement cloturé, proche de toutes les commmodités. Dès l entrée vous serez séduit par les volumes de ce bien , un vaste salon/séjour, une cuisine aménagée et équipée accès direct sur la terrasse et le jardin, un bureau, un cellier, une chambre, une salle d'eau, un wc séparé; A l'étage trois chambres spacieuses, une salle de bains, un wc, un dressing. Le chauffage est distribué par des poeles à pellet, double vitrage à isolation renforcée, electricité rémise à neuf ce qui procure une bonne classification energétique. Une dépendance dans le jardin complète ce bien. Aucun travaux à prévoir, vous n aurez plus qu' a poser vos meubles. Coup de coeur garanti. Vous bénéficierez de toutes les commodités scolaires, médicales, commerciales, sportives et culturelles directement dans la commune. Vous apprécierez aussi la proximité des principaux axes autoroutiers, de l'Allemagne ou du Luxembourg, gare TGV et aéroports (à moins d'une heure). Le « Géorisques » est téléchargeable gratuitement sur le site du gouvernement : georisques.gouv.fr. L'État des Risques et Pollution « ERP » est disponible sur demande et vous sera présenté lors de la visite. Honoraires à la charge du vendeur /// KARDINAL IMMOBILIER à FAULQUEMONT/// /// Découvrez toutes nos offres sur notre site internet kardinal-immobilie
